back to search

UNIQUE CORNER BLOCK OPPORTUNITY

PRESENT ALL OFFERS BY 9AM, TUES 14TH APRIL 2026

36 Blaxland Street, Golden Beach, Queensland

UNIQUE CORNER BLOCK OPPORTUNITY

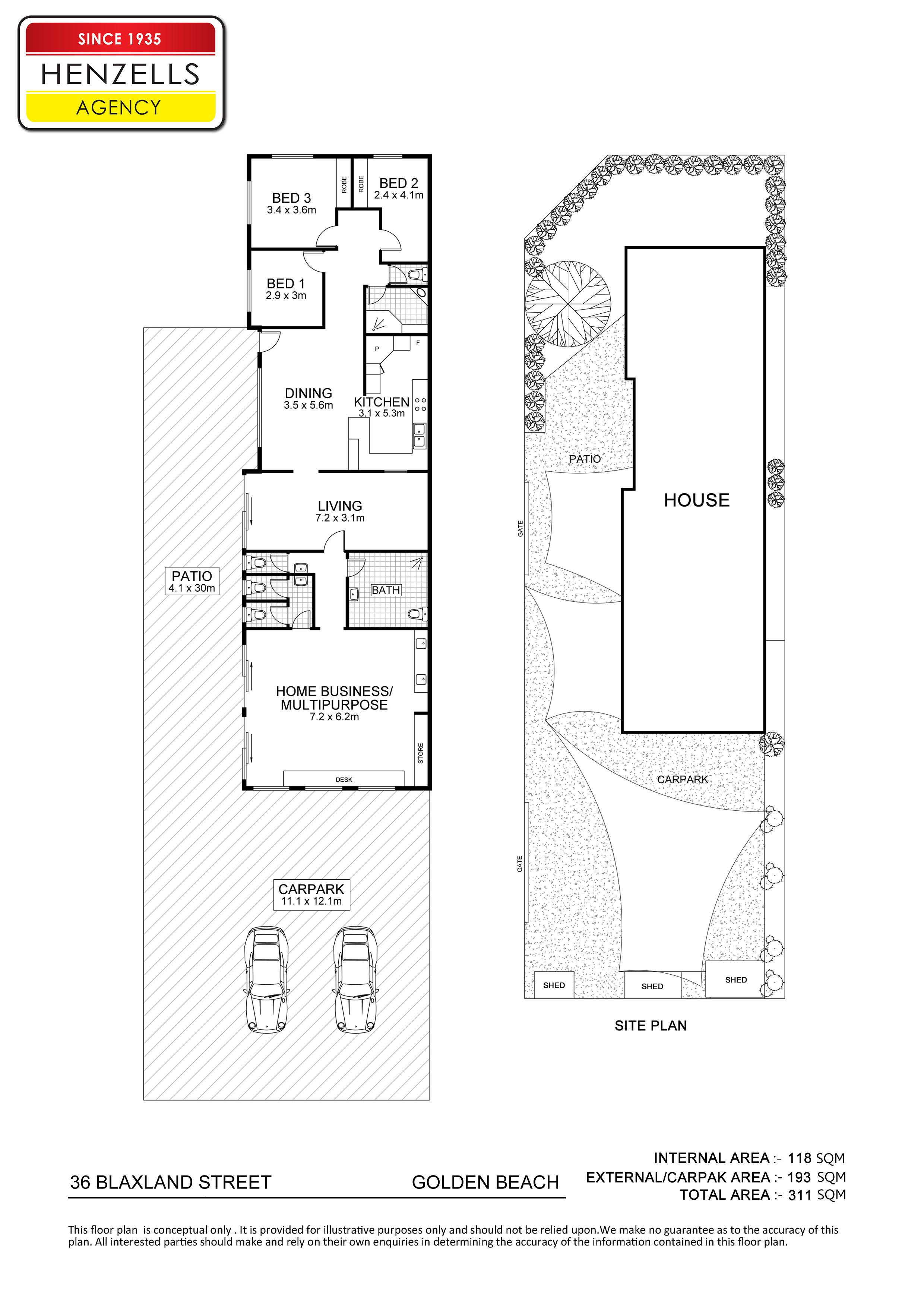
Situated on a 607 sqm corner block, and within easy access to transport, shops and schools, the property can either be used for its originally intended purpose, as a low density house site, or the new owner can take advantage of the approved DA for a 'Daycare/Community Centre' (or similar, subject to council ratification).

Most recently occupied by CentaCare to provide services under the NDIS, the property has been customised to include secure drive-thru client pick up/drop off, five toilets and two full bathrooms (including one large disability shower room). With off street parking for at least five large cars, there's ample space for mini buses or other company vehicles.

With multiple split system air-conditioning units, the property could also be converted back to a house of your own design, with the perfect side access to store your boat, van or other toys.

With such a good location, and with plenty of scope for use, the vendor has requested the property be advertised for a period of time to allow potential buyers to do their own research before submitting their best offer.

~ 3 bedrooms/offices, 5 toilets, 2 bathrooms, shaded parking slab for vehicles
~ Large open plan rumpus/multi-purpose room
~ Full disability friendly bathroom
~ Full kitchen/welcome area or dining space
~ Good access to the side of the property for vehicular storage

Quote this reference when enquiring on this property: BLAX36

(This property may be advertised without a price. In accordance with legislation, a price guide can only be provided via nearby comparable sales. The website may have filtered the property into a price bracket for website functionality purposes.)

DISCLAIMER: Every effort has been made to ensure the accuracy of the information provided regarding this property; however, no warranty or representation is made by the seller or agent. All details are sourced from information deemed reliable. Accuracy cannot be guaranteed. Prospective buyers are advised to conduct their own inspections, enquiries, and searches with the appropriate authorities.

Features

General Features

  • Bedroom: 3
  • Bathrooms: 2
  • Off Street Parking: 5
  • Land Size: 607 m2 (approx)

House Links / Tools

Last updated: 7th April 2026

Summary

Property Type
House
Contract Type
For Sale
Location
 Golden Beach
State
 Queensland
Price
PRESENT ALL OFFERS BY 9AM, TUES 14TH APRIL 2026
Bedrooms
3
Bathrooms
2
Carspaces
5
Land Size
607 m2 (approx)

Click to share

Agency

Contact

Kristi Hawkins